
8217 73rd PL NE Marysville, WA 98270
4 Beds
2.75 Baths
6,274 SqFt
Open House
Fri Oct 17, 11:00am - 5:00pm
Sat Oct 18, 10:00am - 4:00pm
UPDATED:
Key Details
Property Type Single Family Home
Sub Type Single Family Residence
Listing Status Active
Purchase Type For Sale
Square Footage 6,274 sqft
Price per Sqft $138
Subdivision Sunnyside
MLS Listing ID 2443491
Style 12 - 2 Story
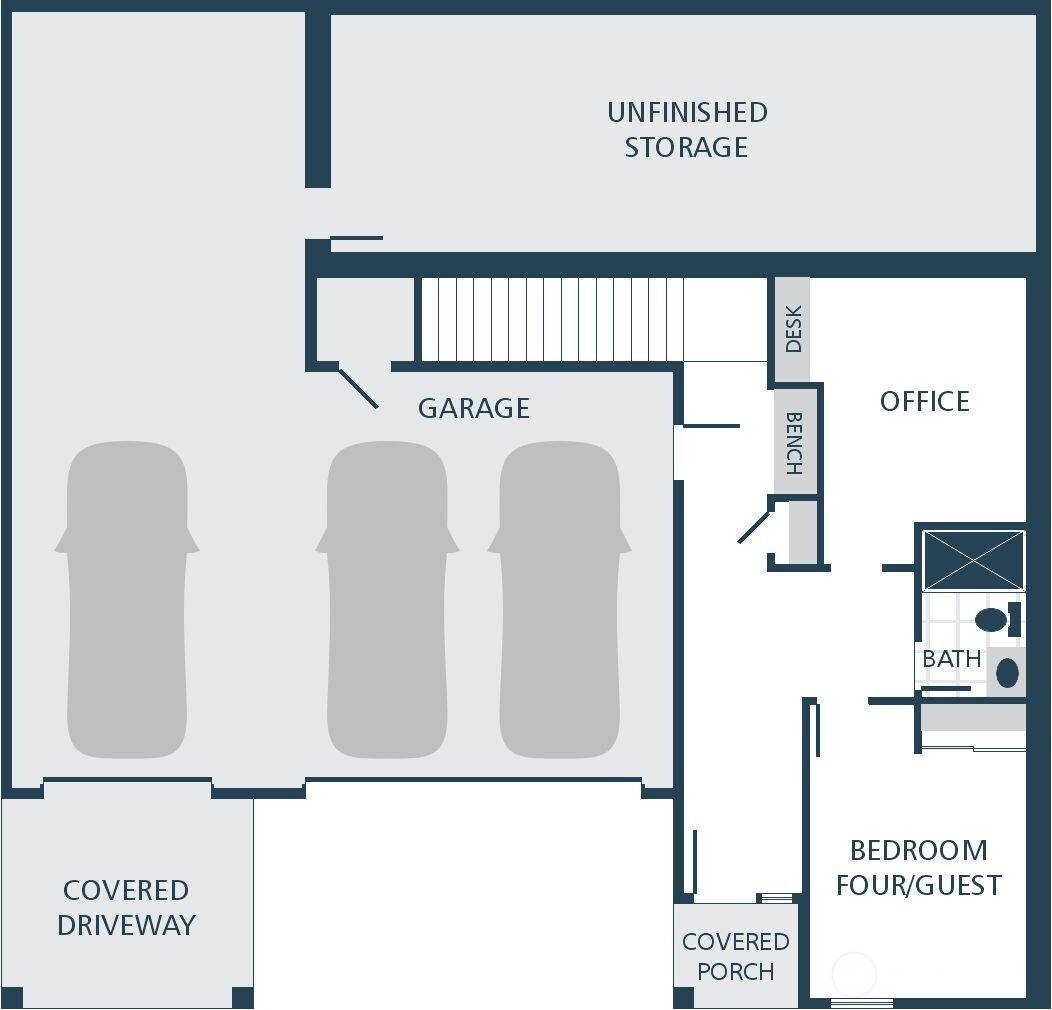
Bedrooms 4
Full Baths 2
Construction Status Under Construction
HOA Fees $99/mo
Year Built 2025
Lot Size 5,746 Sqft
Property Sub-Type Single Family Residence
Property Description
Location
State WA
County Snohomish
Area 770 - Northwest Snohomish
Rooms
Basement None
Main Level Bedrooms 3
Interior
Interior Features Bath Off Primary, Double Pane/Storm Window, Dining Room, Fireplace, High Tech Cabling, Loft, Vaulted Ceiling(s), Walk-In Closet(s), Walk-In Pantry
Flooring Engineered Hardwood, Vinyl, Carpet
Fireplaces Number 1
Fireplaces Type Gas
Fireplace true
Appliance Dishwasher(s), Disposal, Microwave(s), Stove(s)/Range(s)
Exterior
Exterior Feature Cement/Concrete
Garage Spaces 3.0
Community Features CCRs
Amenities Available Cable TV, Patio
View Y/N Yes
View City, Mountain(s), Sound, Territorial
Roof Type Composition
Garage Yes
Building
Lot Description Paved, Sidewalk
Story Two
Builder Name Cornerstone Homes
Sewer Sewer Connected
Water Public
Architectural Style Craftsman
New Construction Yes
Construction Status Under Construction
Schools
High Schools Marysville Getchell High
School District Marysville
Others
Senior Community No
Acceptable Financing Cash Out, Conventional, FHA, VA Loan
Listing Terms Cash Out, Conventional, FHA, VA Loan
Virtual Tour https://vimeo.com/1125938989?fl=pl&fe=sh

